Appartement te VIELSALM (6690)

€ 299.000



Algemeen
Prijs
:
€ 299.000
Aantal slaapkamers
:
2
Aantal badkamers
:
1
Garage
:
1
Kadastraal inkomen
:
€ 690
Adres
:
Place de Salm 2, 6690 VIELSALM
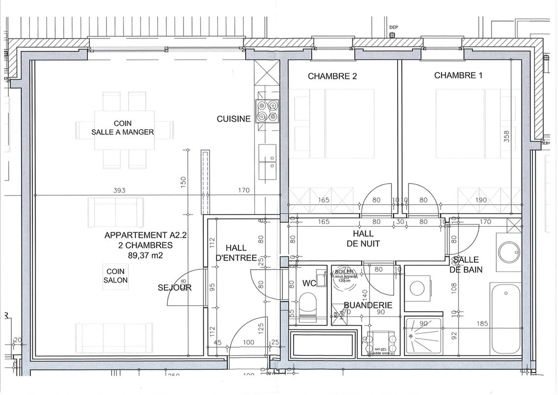
Bewoonbare opp.
:
89 m²
Omschrijving
Dit mooi, modern appartement ligt in het centrum van Vielsalm. Zéér mooi onderhouden en heeft een oppervlakte van 90 m². Het bevat inkomhal, 2 slaapkamers, woonkamer, eetruimte, ingerichte keuken, wasplaats, apart toilet, badkamer met ligbad, douche, lavabo, een terras met uitzicht op het meer “lac des doyards”. Zeer interessant als tweede verblijf of eerste residentie. Ook bij deze eigendom is er een parkeerruimte in de ondergrondse garage. Een aanrader.
Financiële Info
Energie certificaat
E-peil
:
0
EPC
:
84 kWh/m².jaar


Stedenbouwkundige informatie
Voorkooprecht
:
Nog niet aangevraagd
Bouwvergunning verkregen
:
Nog niet aangevraagd
Dagvaarding en herstelvordering
:
Nog niet aangevraagd
Verkavelingsvergunning
:
Nog niet aangevraagd
Bestemming
:
Nog niet aangevraagd
Erfgoed
:
Nee
Comfort
Verwarming
:
Warmtepomp
Oriëntatie achtergevel
:
West
Type dak
:
Niet meegedeeld
Keuken
:
Alle comfort
Beglazing
:
Dubbel
Raamkozijn
:
pvc
Lasten
Google kaart
De kaart vergroten
Uitzicht op straat