Terrain à bâtir à VIELSALM (6690)

70.000 €



Général
Prix
:
70.000 €
Revenu cadastral
:
5 €
Adresse
:
Burtonville 17V, 6690 VIELSALM
Superficie terrain
:
923 m²
Largeur terrain
:
22,77 m
Description
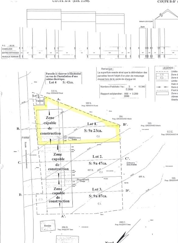
Ce terrain à bâtir est situé dans un lotissement calme à Burtonville, commune de Vielsalm. Il a une superficie de 923 m² (9 ares et 23 centiares). La largeur de la rue est de 22,77 mètres et la profondeur de 48 mètres. Le règlement de lotissement prévoit une construction semi-ouverte (trois façades), voir le plan en annexe. Investissement très intéressant. À proximité des bois et de la nature. Environment très verdoyant.
Informations financières
Certificat energétique
E-level
:
0
PEB
:
Pas applicable


Mentions legales
Droit de préemption possible
:
Pas encore demandé(e)
Permis de bâtir obtenu
:
Pas encore demandé(e)
Citation pour infraction urbanistique
:
Pas encore demandé(e)
Autorisation de lotissement
:
Pas encore demandé(e)
Affectation
:
Pas encore demandée
Héritages
:
Non
Confort/Equipements
Chauffage
:
Non communiqué
Type de toit
:
Non communiqué
Cuisine
:
Non communiqué
Charges
Carte Google
Agrandir le plan
Street view